2-Unit 2-Story Multi-family Traditional Ranch House with 3-Bed Units (Floor Plan)

Specifications:
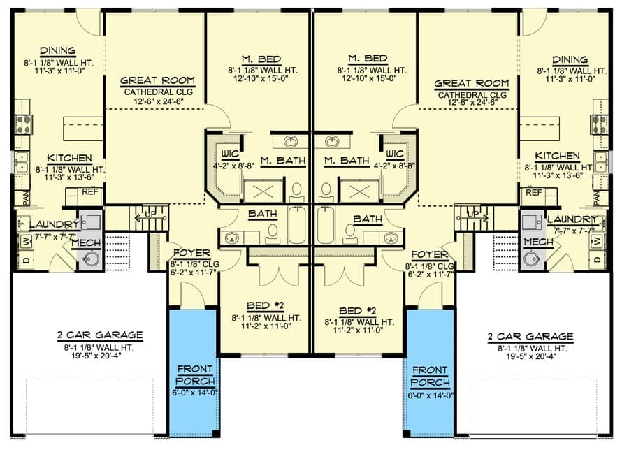
- 3,230 Sq Ft
- 2 Units
- 76′ Width
- 54′ Depth
- 2 Stories
- 4 Cars
Finding the perfect home is tough.
Finding two perfect homes under one roof?
That’s rare—but this multi-family house plan with 3 bedrooms in each unit does just that.
Designed with everyday life and long-term investment in mind, this 3,230 sq. ft. floor plan offers the ideal setup for families, renters, and forward-thinking homeowners.
Let’s take a tour through this brilliantly planned dual-living home and see why it’s more than just square footage—it’s a strategic move.


A Symmetrical Dual-Unit Layout That Works
This home plan features two mirror-image units, each with identical features to ensure harmony and fairness—whether you’re splitting with family or looking to rent both sides.
Each unit measures 1,595 sq. ft., distributed between a spacious 1,395 sq. ft. on the main floor and an additional 200 sq. ft. on the second floor.
With 76 feet of width and 54 feet of depth, the layout is perfectly balanced for privacy and functionality.
This design isn’t just aesthetically pleasing—it’s smart from a financial standpoint.
It simplifies construction, eases maintenance, and increases overall property value.
And with the market always shifting, locking into a plan like this—especially when mortgage rates are favorable—is a smart purchase decision.
Inviting Living Spaces with Cathedral Ceilings
Walking into either unit, you’re welcomed by a grand cathedral ceiling that opens up the great room beautifully.
The height creates a sense of space and airiness, while still keeping things cozy.
This room flows directly into the eat-in kitchen, forming the core of the home’s communal energy.
Whether you’re gathering for family dinners or binge-watching the latest series, the flow of this space is perfect.
Plus, it’s tailor-made for integrating smart home technology, like voice-controlled lighting or a surround sound system.
Planning the setup?
Load it into your favorite interior design software and start experimenting.
Functional Kitchens with Hidden Laundry Rooms
The kitchen isn’t just where you cook—it’s the heart of the home.
In this plan, it’s positioned perfectly beside the great room, complete with easy access to the laundry room, hidden neatly behind pocket doors.
That laundry space includes a utility sink and leads directly to the 2-car garage—hello, convenience!
The connection between these spaces makes daily chores easier and more efficient.
It’s the kind of thoughtful detail that matters for long-term enjoyment—and for resale, should you ever decide to refinance your mortgage or explore a home equity loan for renovations.
Private Master Suites with Rear Views
Each unit’s master bedroom is tucked at the back of the house for privacy and tranquility.
Measuring 12′ by 15′, it’s large enough for a king-sized bed and features serene views of the backyard.
There’s also a full attached bathroom and a generous walk-in closet—because who ever complained about too much storage?
This secluded setup is perfect for relaxation, and it enhances livability in a way that buyers and renters alike appreciate.
It also helps when working with a real estate agent to boost your property’s profile in listings.
And from a financial perspective, well-designed master suites help improve appraisals and support better terms on home improvement loans if you decide to upgrade later.
Versatile Bonus Rooms Upstairs
That additional 200 sq. ft. on the second floor?
It’s the flexible space we all wish we had.
You can use it as a third bedroom, a home office, a playroom, or even a quiet retreat for yoga and meditation.
The point is—it adapts to your lifestyle.
Homes with flexible floor plans have better long-term value and can make a big difference when applying for a home loan pre-approval.
Lenders love to see versatile, livable homes.
And if you ever plan to rent out a unit, having that third bedroom could make your listing stand out in a crowded rental market.
Two-Car Garages for Each Unit
This plan includes two garages, each accommodating two vehicles.
That’s four cars off the street and protected from the elements.
It’s a big win whether you’ve got teenagers, guests, or a serious tool collection.
Garages this size don’t just offer vehicle storage—they provide room for workbenches, seasonal gear, or even a home gym.
They’re an often-overlooked aspect of home design that plays a big role in boosting the home’s property value and justifying better home insurance coverage.
Outdoor Access Designed for Living
Each dining area opens directly to the backyard via a strategically placed door, making outdoor access easy and inviting.
Whether you’re grilling, gardening, or letting the dog run free, this design keeps things convenient and connected.
It also opens up the potential for landscaping, decks, or patios—perfect projects for a skilled home remodeling contractor.
And if you’re financing outdoor upgrades, this setup makes a great case for a home equity loan or home improvement loan to enhance your outdoor living experience.
Ideal Bedroom Distribution for Families
With 2 to 3 bedrooms and 2 full bathrooms in each unit, this floor plan supports a wide range of living scenarios.
From growing families to roommate situations, it’s designed for comfort and functionality.
And because bedrooms are spread out intelligently across the two levels, it adds an extra layer of privacy.
It’s these kinds of thoughtful designs that make the home feel like more than just a building—it’s a livable space, built for real life.
Plus, it supports better resale and refinancing options, especially if you’re keeping an eye on credit score impact when applying for new loans.
Multi-Generational Living Made Easy
With two fully independent units, this home is perfect for multi-generational living.
Grandparents on one side, younger families on the other—it’s a solution that respects independence while keeping loved ones close.
It’s also a top feature in today’s housing market, where more families are combining households for financial or caregiving reasons.
That’s why this floor plan is a favorite among smart buyers and investment seekers.
And in the hands of a great real estate agent, it becomes a standout listing.
Built-In Safety and Tech-Readiness
This plan is ready for modern living.
You can easily install the best home security system, complete with smart locks, cameras, and sensors.
It’s also ready for solar panel integration, electric vehicle charging, and other sustainable tech upgrades.
Combine that with modern smart home technology and you’ve got a future-proof home that caters to comfort and security.
And for peace of mind, a solid home warranty can ensure your systems and appliances are covered long-term.
When it comes to smart design, this multi-family house plan gets everything right.
From the 3 bedrooms per unit, functional living spaces, cathedral ceilings, garages, and backyard access—it all comes together beautifully.
With flexibility, comfort, and investment value built in, it’s a home for today, tomorrow, and years down the line.
If you’re planning to buy, thinking of future income potential, or simply want to secure a long-term investment, this plan is a winner.
It’s a rare find that blends comfort with opportunity—and one that’s ready to grow right alongside you.
There’s more to home building than blueprints and finishes. Take time to compare mortgage rates, understand your credit score, and consult a seasoned real estate agent.
Secure your new home with home insurance, a quality home warranty, and explore refinancing down the road.
Tech-forward features like solar panels, smart home systems, and energy-efficient appliances not only enhance comfort—they raise your property value.
And with modern interior design software, planning your space is easier than ever.










