4-Bedroom 1-Story Modern Farmhouse With Massive 3-Car Garage and RV Bay (Floor Plan)

Specifications:
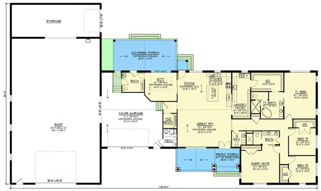
- 3011 Sq Ft
- 4 Beds
- 2.5 Baths
- 1 Stories
- 3 Cars
Let me just say this: if homes could win awards for doing the most in the best way possible, this one would be taking home the gold, the silver, and probably a lifetime achievement trophy.
With 3,011 square feet of heated living space, a sprawling 3,227-square-foot garage and workshop combo, and more porch space than my entire first apartment,this modern farmhouse barndominium doesn’t just meet expectations—it grabs them by the collar and gives them a tour of luxury.
Let’s dive into this beauty, shall we?
Now, I’ve seen a lot of open layouts in my time, but this one is truly something special.
The flow between the living, dining, and kitchen areas is so seamless, it’s like the rooms are all in a beautifully choreographed dance.

Open Layout Magic
Whether you’re whipping up a gourmet meal or just trying to make boxed mac ‘n cheese look fancy, you’ll appreciate how the kitchen island faces the family room fireplace.
Because yes, you can stir your soup and bask in the cozy firelight at the same time. Multitasking never felt so good.
And if you’re like me and sometimes use “open layout” as code for “don’t trap me in a dark kitchen,” you’ll love the walls of glass that bring in a flood of natural light and give you killer views of the backyard and barbecue porch.
It’s the kind of place where you’ll want to host every holiday—and maybe invent a few new ones just for an excuse to gather.

Spoiler, It’s Glorious
Okay, real talk: this kitchen setup had me at “double pantry.”
Not only do you get a walk-in food pantry (because snacks deserve space too), but there’s also a butler’s pantry tucked away for those moments when you need to hide your clutter and pretend you’re effortlessly elegant.
Whether you’re baking cookies with the kids or prepping for a dinner party, this kitchen has the space, the storage, and the style to keep up with real life.

And did I mention the views?
Between the natural light and the strategic layout, cooking here might just become your new favorite hobby.
Bedrooms
Let’s talk about the sleeping quarters because every single bedroom in this house gets the VIP treatment: walk-in closets.

No more battling over hanger space or hiding shoes under the bed.
Every member of the family gets their own storage haven.
But the real showstopper?

The master suite. With a lovely tray ceiling, a peaceful ambiance, and direct access to the back porch, it feels like a boutique retreat.
You can sip your morning coffee outdoors in your robe and pretend you’re at a five-star resort—even if the only thing you’re doing that day is laundry.
Where Your RV, Boat, and Tools Live in Harmony
Alright, let’s shift gears—literally—and talk about this 3,227-square-foot garage and workshop combo.

This isn’t your average two-car squeeze-in-while-sucking-in-your-gut kind of garage.
This is a barndominium-level beast, with enough space to house three vehicles, an RV, a boat, and possibly even a band rehearsal space (hey, no judgment here).
Got tools? There’s room.

Got hobbies that take up an entire wall? Also fine.
Want to park your motorhome and still have space to build that vintage motorcycle from scratch? This garage says, “Come on in.”
It’s the perfect blend of functionality and freedom—think of it as a grown-up playground for all your projects and passions.

And for those of us who secretly daydream about the ideal workshop setup with air compressors, workbenches, and spotless organization…this is your sanctuary.
Work and Play, Sorted
Need a quiet space to work or a spot to hide from your in-laws?
This home has you covered with a dedicated study.

Whether you’re working from home, gaming, or finally writing that novel , this peaceful nook delivers productivity wrapped in farmhouse charm.
And because no great house is complete without a little “just-in-case” flexibility, there’s optional bonus space waiting for you to finish when the time is right.
Home theater? Gym? Craft room? Secret hideout?

You name it—it’s ready to transform into whatever your life needs next.
Outdoor Living
The outdoor spaces on this property are not playing around.
We’re talking 694 square feet of combined porch space, and it’s not just for looks—it’s designed for real-life living.

Picture this: you’re out on the barbecue porch, the grill is fired up, music’s playing, drinks are flowing, and the sun is setting behind your perfectly landscaped backyard.
It’s the kind of setup that makes you want to cancel all your restaurant reservations—why go out when your own porch is this good?

And don’t forget the easy access from the master suite to the back porch.
That little door is like your own personal escape hatch. Quiet mornings and breezy evenings await.

and a Whole Lot of Life
This home doesn’t just look good; it’s smart, too.
The side-load garage design makes it ideal for a corner lot, adding curb appeal and functionality in one fell swoop.
And with all living space located on the first floor, this layout is perfect for families of all ages, those looking to age in place, or anyone who prefers to avoid stairs after leg day.
From its thoughtful layout to its generous workshop space, this house doesn’t just meet expectations—it crafts a lifestyle around comfort, practicality, and a touch of luxury.
Whether you’re building your forever home, downsizing with style, or simply seeking a home that “gets” you—this modern farmhouse barndo is a knockout.
There’s more to home building than blueprints and finishes. Take time to compare mortgage rates, understand your credit score, and consult a seasoned real estate agent.
Secure your new home with home insurance, a quality home warranty, and explore refinancing down the road.
Tech-forward features like solar panels, smart home systems, and energy-efficient appliances not only enhance comfort—they raise your property value.
And with modern interior design software, planning your space is easier than ever.










