4-Bedroom 2-Story Modern Farmhouse with Rec Room (Floor Plan)

Specifications:
- 3,506 Sq Ft
- 3 – 4 Beds
- 4.5 Baths
- 2 Stories
- 3 Cars
You know a house plan is something special when you find yourself daydreaming about moving in before you’ve even finished reading the square footage.
This split-bedroom modern farmhouse, coming in at 3,506 square feet, offers the perfect mix of style, function, and comfort.
It’s the kind of floor plan that feels ready-made for both real life and Pinterest.
Let’s walk through it, room by room—because once you see what it offers, you might just want to buy it on the spot.


Striking Curb Appeal with an Angled Garage
Let’s start with the first thing you (and your neighbors) will notice: the exterior.
Board and batten siding gives this home that crisp, clean modern farmhouse vibe, while the standing seam metal roof adds just the right amount of edge.
And that angled 3-car garage?
It’s not just stylish—it’s smart.
It adds architectural interest and improves access, especially on corner lots or tricky driveways.
But beyond looks, the angled garage means more usable interior space, and trust me, when you’re calculating with a building cost estimator, every square foot counts.
It’s the kind of curb appeal that boosts property value right out of the gate—and impresses every guest pulling into your driveway.
A Welcoming Foyer with a View
Step inside, and the foyer doesn’t just greet you—it gives you a panoramic preview of what’s ahead.
It draws your eyes all the way through the family room and out to the backyard, creating that coveted open, airy feel from the moment you walk in.
Off to the right, elegant columns define the formal dining space without closing it off.
The foyer also sets the tone for the rest of the home: clean lines, thoughtful layout, and space that flows naturally.
It’s the kind of entryway that makes you imagine greeting guests with confidence—especially once you’ve nailed your home loan pre-approval and you’re officially the proud owner.
Open-Concept Living with Seamless Flow
If the heart of a home is where life happens, then this home’s heart is an open-concept masterpiece.
The kitchen, family room, and breakfast nook all connect in a way that encourages conversation and connection—no more shouting across walls or missing the punchline while making snacks.
From the kitchen, you can watch the fireplace flicker, keep an eye on homework at the breakfast table, or gaze out to the vaulted covered terrace.
The island offers bar-top seating for casual meals or late-night chats.
And let’s not forget the hidden pantry—because who doesn’t want a secret stash of snacks?
This kind of openness is not just beautiful—it’s livable.
And when you’re thinking about making a big purchase, it’s the kind of detail that justifies every dollar.

Kitchen Features Built for Real Life
Let’s give the kitchen its own spotlight, because wow—it earns it.
That large island isn’t just about style; it’s functional, perfect for meal prep, entertaining, or just standing around with coffee while pretending to be productive.
The hidden pantry is a chef’s dream, offering storage without cluttering the visual flow of the space.
For anyone considering future upgrades, whether using home improvement loans or building in equity over time, this kitchen is the kind of space that adapts.
Add smart home technology, upgrade your appliances, or integrate the best home security system—this layout makes it all feel seamless.
A Luxurious and Private Master Suite
Now let’s head to the master suite, and let me tell you, it’s not playing around.
First of all, it has direct access to the vaulted covered terrace, so morning coffee or evening wine just got a major upgrade.
Inside, the bedroom boasts a double tray ceiling that gives the room height and elegance.
The master bathroom features dual vanities, a spacious shower, and separate his-and-her walk-in closets—because the only thing worse than a small closet is sharing it.
And with private access to the terrace, this suite becomes more than just a bedroom—it’s a retreat.
Thinking long term?
This master suite adds serious weight to your investment.
It’s the kind of feature that increases resale appeal and supports home equity loan options down the line.
Split Bedrooms for Ultimate Privacy
This floor plan gets major points for smart separation.
On the opposite side of the home from the master suite, you’ll find two additional bedrooms, each with their own full bath.
This layout is perfect for families who value privacy—or for anyone who has frequent guests.
With everyone having their own space and bathroom, the morning rush becomes way less chaotic.
Plus, these private setups give you options for aging parents, older kids, or even creating a home office.
And yes, having multiple full baths also earns points with any real estate agent evaluating your home’s market potential.

Practical Main Floor Perks
We love a gorgeous home, but practicality matters too—and this plan delivers.
The main floor includes a laundry room located near the garage entrance (also known as the family entrance), complete with a built-in bench that’s just begging for muddy boots or dropped backpacks.
There’s also a powder room for guests, and the flow from garage to kitchen makes unloading groceries a breeze.
It’s thoughtful little touches like these that make a home feel livable every single day.
And if you’re thinking long term—maybe refinance your mortgage in the future or protect your space with a solid home warranty—having this kind of efficient layout only sweetens the deal.
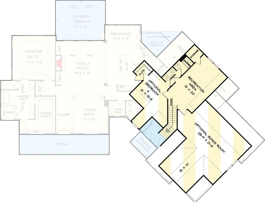
Upstairs Bonus Space and Expansion Potential
Now let’s head upstairs, where things get even more exciting.
A 420-square-foot rec room awaits, perfect for a media center, workout space, or the ultimate teen hangout zone.
But wait—there’s more.
Optional expansions allow you to add a fourth bedroom (adding 279 square feet) and a bonus room (adding another 728 square feet).
This means the home grows with you.
Planning to expand your family?
Need space for a side hustle or home business?
Or maybe you’re just trying to maximize the investment potential.
Whatever your motivation, this upstairs flexibility gives you room to breathe and dream.
Built for Beauty, Designed for Function
From top to bottom, this floor plan blends timeless charm with smart functionality.
Whether you’re mapping out the layout using interior design software or making decisions based on your credit score, this home adapts to fit your goals.
Every space is intentional, every room feels cohesive.
And with today’s mortgage rates changing daily, choosing a home that you know will work for years to come is a smart move—both emotionally and financially.
In the end, this 3,506 square-foot split-bedroom modern farmhouse offers everything I want in a floor plan: comfort, flexibility, beauty, and practicality.
It’s ideal whether you’re a first-time buyer, a growing family, or someone looking for a long-term real estate investment with room to evolve.

It doesn’t just feel like a house—it feels like home.
One that’s ready to be protected with home insurance, equipped with the best home security system, and remodeled with a great home remodeling contractor if needed.
The only thing left to do?
Find your favorite coffee mug—because once you buy this house, you’ll want to savor every minute of it.
There’s more to home building than blueprints and finishes. Take time to compare mortgage rates, understand your credit score, and consult a seasoned real estate agent.
Secure your new home with home insurance, a quality home warranty, and explore refinancing down the road.
Tech-forward features like solar panels, smart home systems, and energy-efficient appliances not only enhance comfort—they raise your property value.
And with modern interior design software, planning your space is easier than ever.










