4-Bedroom 2-Story Modern Farmhouse with Spacious Workshop and 4-Car Garage (Floor Plan)

Specifications:
- 4,356 Sq. Ft.
- 4 Beds
- 4.5 Baths
- 2 Stories
- 4 Cars
If you’re on the hunt for a house plan that mixes style, comfort, and plenty of space, look no further.
This modern farmhouse design has it all — from an open layout to a massive workshop, perfect for both busy families and those who enjoy a little extra room to breathe.
Whether you’re a fan of cozy evenings by the fireplace or entertaining guests in the spacious outdoor living areas, this home has you covered.
Let’s dive in and take a closer look at the incredible features that make this farmhouse plan stand out from the rest.


The Heart of the Home, Open Layout and Cozy Fireplace
The first thing you’ll notice when you walk into this 4-bedroom, 4.5-bath modern farmhouse is the sense of openness.
The layout flows seamlessly from one room to the next, creating a space that feels airy and welcoming.
And what better way to enjoy a chilly evening than with the warmth of a family room fireplace?
Perfectly positioned, it allows you to relax and unwind while still being part of the action — whether that’s chatting with family while they cook dinner or watching your favorite movie.
A Sink with a View
Speaking of cooking, let’s talk about the kitchen.
If you’ve ever wished your kitchen sink faced forward instead of being tucked away, you’re in luck.
In this home, the kitchen sink is situated in the island, facing the open space of the family room.
It’s the ideal spot for multitasking, allowing you to prep meals while keeping an eye on the kids or entertaining guests.

Plus, the island is large enough to act as a casual dining area or a spot for friends to gather while you cook.
And if you’re anything like me, a good kitchen island is the unsung hero of any home.
Pantry Perfection, Walk-In and Butler’s
One of the joys of a well-thought-out farmhouse is the abundance of storage.
This home takes that to heart with not one, but two pantries!
First, we have the walk-in food pantry — a dream come true for anyone who likes to stock up on snacks, canned goods, or bulk items.
The spacious shelves ensure that you’ll never have to worry about running out of pantry space.
But wait, there’s more. Right next door, you’ll find a butler’s pantry that provides extra prep space, perfect for storing fine china or setting up a coffee station.
These two storage areas mean you’ll have all the room you need to stay organized and efficient in the kitchen.

Let the Light In, Glass Walls for Maximum Views
Now, let’s talk about the incredible natural light that floods this home.
The walls of glass throughout the space are like a love letter to the outdoors.
Whether you’re in the family room, dining area, or even the kitchen, you’ll be treated to beautiful views of the porch and your backyard.
These expansive windows not only bring in light but also connect you to nature, making the entire home feel open and inviting.
Plus, the seamless flow between indoor and outdoor living spaces makes entertaining a breeze.
Your Personal Sanctuary
When it comes to retreating after a long day, the master suite in this farmhouse is your personal haven.
The tray ceiling adds a touch of elegance, making the space feel even more expansive. And the best part?
The large door that leads directly out to the back porch.

Imagine stepping out for a quiet evening, enjoying the cool air and listening to the sounds of nature.
It’s the perfect way to unwind before calling it a night.
The suite also features a spacious walk-in closet, making sure you have all the storage you need for clothes, shoes, and everything else.
With ample space for organizing your wardrobe, you’ll never have to worry about clutter again.
It’s the ultimate combination of luxury and practicality.
Split Bedrooms
This farmhouse plan does an excellent job of providing privacy for everyone in the family.
The bedrooms are split, meaning the master suite is separated from the other three bedrooms.
Whether you have children, guests, or just prefer a bit of solitude, the layout ensures that everyone can enjoy their own space without feeling cramped.

It’s the perfect arrangement for a growing family or for hosting friends and relatives.
Ready When You Are
What’s even better than a house that fits all your needs? A house that grows with you.
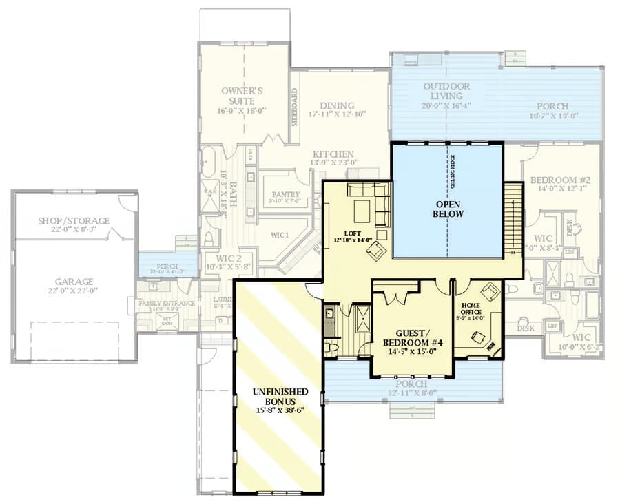
This modern farmhouse offers a bonus space that you can finish when you’re ready.
Whether you envision a home office, gym, or playroom, this extra area gives you the flexibility to adapt the home to your changing lifestyle.
And with the 654-square-foot bonus space, the possibilities are endless.
Whether you need an additional room for work or relaxation, this space is a true game-changer.
A Spacious Home for Your Vehicles
No modern farmhouse is complete without a spacious garage, and this home delivers with a massive 1,202-square-foot garage.
With room for four cars, you’ll never have to worry about parking.

Plus, the side-load entry makes this garage ideal for corner lots, ensuring that the front of the home maintains its clean, classic aesthetic.
Whether you’re storing vehicles, outdoor gear, or simply need extra space, this garage has you covered.
From the open, airy layout to the stunning outdoor spaces, this modern farmhouse plan offers everything you could want in a home.
With ample storage, flexible bonus spaces, and a layout that provides both privacy and connection, it’s the ideal design for anyone looking to create a home that is as functional as it is beautiful.
Whether you’re cooking in the spacious kitchen, relaxing by the fireplace, or enjoying a warm summer evening on the porch, this farmhouse plan truly has something for everyone.
There’s more to home building than blueprints and finishes. Take time to compare mortgage rates, understand your credit score, and consult a seasoned real estate agent.
Secure your new home with home insurance, a quality home warranty, and explore refinancing down the road.
Tech-forward features like solar panels, smart home systems, and energy-efficient appliances not only enhance comfort—they raise your property value.
And with modern interior design software, planning your space is easier than ever.










