4-Bedroom One-Story French Country House with Bonus Expansion (Floor Plan)

Specifications:
- 4,270 Sq Ft
- 4 Beds
- 4.5 Baths
- 1 Stories
- 4 Cars
Some house plans just speak your language—this one practically sings it with a French accent.
At 4,270 square feet, it combines refined architecture with family-friendly spaces and enough charm to make you wonder why you waited so long to build it.
With 4 bedrooms, 4.5 baths, and space for 4 cars, this is a one-story wonder that truly redefines what “coming home” feels like.



Charming Curb Appeal with a French Country Twist
The first thing that catches your eye is the classic French Country-style exterior.

It’s sophisticated without being fussy, welcoming without trying too hard.
The small covered front porch adds a warm invitation, while the angled 4-car garage blends seamlessly with the home’s graceful lines.

This design feels timeless yet fresh, perfect for buyers who want their home to age as gracefully as a fine Bordeaux.

It’s the kind of home that instantly enhances property value—a real investment not only in beauty but in long-term living.

A Great Room Built for Grand Moments
Step inside, and the raised ceiling in the great room immediately lifts your mood.

It’s the heart of the home, offering open views of the spacious rear covered patio.

A fireplace anchors the room beautifully, flanked by built-in bookcases that are ready to display your favorite reads, heirlooms, or a few tasteful photos from that trip to Provence you keep telling everyone about.

This room flows effortlessly into other living spaces, and with modern smart home technology, you can dim the lights, cue the music, and fire up the ambiance—all without leaving the couch.
It’s cozy, classy, and completely livable.

A Kitchen That Brings People Together
This house plan doesn’t just include a kitchen—it features a gathering space where meals turn into memories.

At the center is a generous island, ideal for prepping, serving, or letting the kids snack while pretending to do homework.

Just steps away is the breakfast room, which even has its own covered patio—morning coffee, anyone?

The kitchen also connects to a formal dining room via a butler’s pantry, offering the best of both casual and elegant dining.

And whether you’re entertaining friends or just whipping up Wednesday night pasta, this layout supports it all.

The openness and flow help maximize functionality—something that comes in handy whether you’re thinking of a future home equity loan or simply love having space to move.

A Family Room That Feels Like a Sanctuary
Tucked just beyond the kitchen is a family room with a cathedral ceiling and its own fireplace, perfect for relaxed evenings or late-night binge-watching.

With so much space, it’s easy to imagine customizing it with your favorite interior design software, adding just the right touches to reflect your style.

Whether it’s a cozy reading corner, a play area for the kids, or even a music nook, this room adapts to your lifestyle effortlessly.

And if you’re looking at this home as a long-term purchase, this flexible space only adds to its enduring value.

A Master Suite That Deserves a Standing Ovation
The master suite in this house plan is what luxury dreams are made of.

With its raised ceiling, private seating area, and direct access to the back patio, it feels more like a boutique hotel suite than a bedroom.

Want to slip out at dawn for a peaceful moment outside?
You can.

Need to escape for a midday nap while the rest of the house buzzes?
Done.

Dual walk-in closets—yes, his and hers—offer abundant storage. (Or, let’s be honest, hers and hers.)

The design encourages both comfort and privacy, something you’ll appreciate whether you’re settling in long-term or preparing for a future refinance mortgage based on your improved credit score.
This space is not just for sleeping—it’s for living well.

Private Bedrooms with Space to Spare
The floor plan divides the bedrooms with thoughtful precision.

One secondary bedroom is located near the master suite—perfect for a nursery or guest room—while two more are tucked away on the opposite side of the home, each with convenient bath access.

This layout offers both proximity and privacy, especially ideal for families with older children or frequent guests.

And if you’ve got teens who crave independence or visiting relatives who like their space, this plan has you covered.

With generous square footage and personal comfort baked in, everyone feels at home.

For those considering this home as an investment property or a multi-generational living option, the bedroom layout hits the mark.

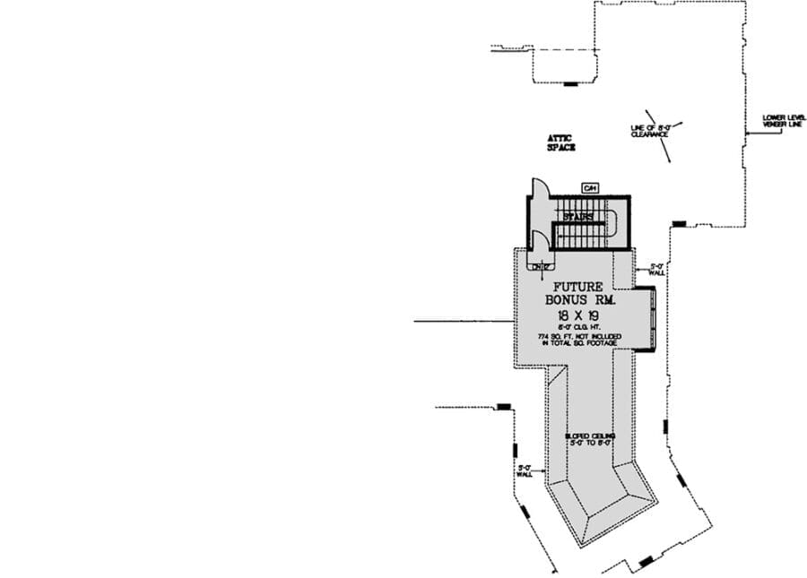
Bonus Room Above the Garage
Need more space for hobbies, a home office, or future plans?

Look no further than the 774 sq. ft. bonus room above the garage.
This optional expansion adds tremendous versatility—think gym, media room, or a private retreat away from the main level.

If you’re calculating costs using a building cost estimator, this bonus space adds significant value without overcomplicating your design.

It’s a clever way to enhance livability while also increasing your home’s property value.

And if the future calls for a side business or extra storage, you’ll be glad this extra room was part of the plan.

A Garage That Works Hard and Looks Good Doing It
Not all garages are created equal, and this one makes a bold statement.

The angled 4-car garage offers more than just car space—it’s a multifunctional zone waiting to be customized.
Whether it’s for tools, bikes, a hobby workshop, or just an uncluttered place to store seasonal gear, this garage makes everyday living smoother.

With options for adding the best home security system and integrating smart home technology, you’ll feel confident that your vehicles—and your home—are safe and secure.

And if your future plans include a home remodeling contractor, the garage’s generous size gives you the flexibility to dream big.

Long-Term Value and Peace of Mind
Beyond the beauty and space, this house plan is built for peace of mind.

Planning to buy means considering everything from home insurance to home warranty options, and this home’s well-planned design supports both.

Single-story living makes it future-friendly, while durable materials and thoughtful architecture keep maintenance low.

Thinking about a future refinance mortgage or using home improvement loans to enhance your space even more?
This home makes financial planning easier, with its adaptable layout and solid resale potential.

And of course, if you’re serious about making this house a reality, start by chatting with a real estate agent and locking in your home loan pre-approval.

With current mortgage rates always shifting, being prepared lets you act fast on a home that’s absolutely worth the leap.
This French Country-style house plan doesn’t just offer space—it offers possibilities.

From elegant entertaining to relaxed weekends with family, it supports the way you want to live today and tomorrow.

Whether you’re drawn to the architectural charm, the practical layout, or the luxurious finishes, this plan gives you the best of all worlds.
It’s not just a smart purchase—it’s an intentional step toward a lifestyle filled with beauty, functionality, and peace of mind.
So take the leap.
Your dream home is waiting, and it’s speaking fluent French.
There’s more to home building than blueprints and finishes. Take time to compare mortgage rates, understand your credit score, and consult a seasoned real estate agent.
Secure your new home with home insurance, a quality home warranty, and explore refinancing down the road.
Tech-forward features like solar panels, smart home systems, and energy-efficient appliances not only enhance comfort—they raise your property value.
And with modern interior design software, planning your space is easier than ever.










