4-Bedroom Three-Story Home with Library Hall and Built-Ins (Floor Plan)

Specifications:
- 3,335 Sq Ft
- 4 Beds
- 3.5 Baths
- 2 – 3 Stories
- 4 Cars
Some floor plans just hit differently—this one?
It hits all the right notes.
With 3,335 square feet of beautifully balanced space, 4 cozy bedrooms, 3.5 well-placed baths, and even the flexibility of 2 to 3 stories, it’s like this home was custom-designed for comfort and class.
From a grand entryway to a dreamy master suite and a surprise loft space upstairs, let’s walk through the plan together—room by room, level by level.






A Grand Welcome
The moment you step onto the 134-square-foot front porch, you can already tell this house has serious curb appeal.
The brick exterior, highlighted with classic quoins, adds a timeless elegance.
And once you step through the front door?
Hello, statement entrance.
The large foyer is bright, spacious, and the kind of place that practically demands a dramatic chandelier.
It leads directly into an enormous living and dining area where tall windows steal the show—letting in floods of natural light that stretch from floor to ceiling.
This expansive space makes entertaining effortless.
Whether you’re planning a low-key game night or a holiday dinner party, there’s room for everything and everyone.
And if you’ve ever used a building cost estimator, you know how rare it is to find this much open space designed this beautifully.
The Library Hall and Master Retreat
Now let’s take a turn down the elegant library hall, complete with built-ins on either side.
It’s the kind of architectural detail that immediately makes you feel like you’re living in a home with history—even if it’s brand new.
This cozy, book-filled corridor leads straight to the crown jewel of the first floor: the master retreat.
Tucked away for maximum privacy, the master suite is spacious and serene.
Imagine waking up every day in this peaceful corner of the house, with space for a king-sized bed, reading nook, and maybe even a little seating area.
It’s perfect for winding down after a long day, and with the right smart home technology upgrades—like automated blackout blinds or a smart thermostat—you can customize the comfort completely.

If you’re thinking about buying or refinancing a mortgage for a home like this, the master suite alone adds serious value—not just emotionally, but in terms of long-term investment.
And let’s be honest, when it comes to floor plans, a thoughtfully placed and generously sized master bedroom is everything.
Bedrooms and Bathrooms in All the Right Places
This plan features four bedrooms and three and a half baths, giving everyone in the household space to breathe.
The additional bedrooms are located upstairs, making the separation between public and private areas feel natural and intentional.
Kids, guests, or even that home office you keep saying you’ll start—it all fits perfectly into the second level.
And let’s talk about those bathrooms.
Three full baths and one half bath mean no one is fighting for mirror space during the morning rush.
With smart placement and enough square footage to make each one functional and stylish, you’ve got convenience baked into the design.
You might even consider a home improvement loan to add some extra luxury touches—heated floors, a rainfall shower, maybe even a jetted tub.
Why not?
Second-Floor Study and the Bonus Loft Surprise
Upstairs, you’ll find a dedicated children’s study—a quiet zone perfect for homework, reading, or even just zoning out with a good video game.
This feature makes this house incredibly family-friendly and future-proof.
As your needs evolve, this room can too: home office, art studio, yoga retreat—you name it.

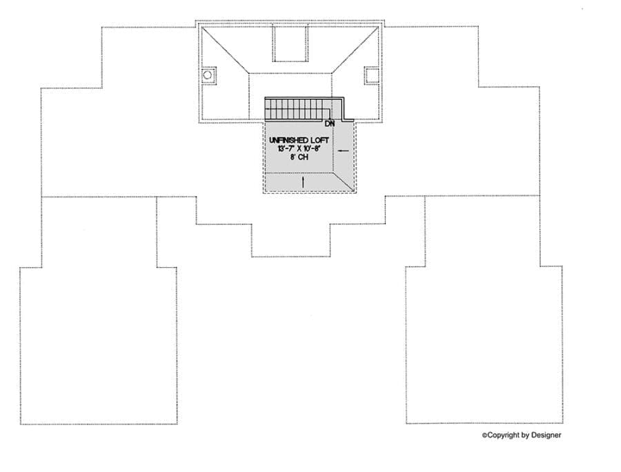
From the children’s study, stairs lead to an unfinished storage area.
And while “unfinished” might not sound glamorous, trust me—it’s a goldmine of potential.
Think about the possibilities here.
You could finish it off and increase your property value, add a guest suite, or finally build that home theater you’ve always dreamed about.
Some buyers even use this space to gain home equity faster by making smart upgrades with a trusted home remodeling contractor.
And if that’s not enough?
More stairs lead you to a third-floor loft.
Yep, there’s another level.
It’s the kind of space that makes you want to call your real estate agent and shout, “I found it!”
This bonus area adds 567 square feet of flexible living—ideal for hobbies, guests, or just a quiet place to escape and watch your favorite shows in peace.
First-Floor Functionality and Flow
The first floor is more than just pretty—it’s practical.
With 2,054 square feet, it’s laid out in a way that gives each room breathing room while maintaining a natural flow.
You move from the entry into the main living area, down the library hall to the master suite, and around to where the kitchen and utility spaces would be ideally located.
There’s enough space for customizations, too—whether you’re dreaming of a chef’s kitchen or a built-in breakfast nook.
And tools like interior design software make it easy to visualize before you build.
If you’re getting a home loan pre-approval, having a functional floor plan like this in mind can help you define your budget more accurately and avoid overspending on features that don’t add real value.

Four-Car Courtyard Garage
This floor plan doesn’t just think about where you live—it thinks about where your cars live, too.
With 1,065 square feet dedicated to a four-car garage, this setup is perfect for families with multiple vehicles, weekend toys, or anyone who hates street parking (guilty).
The garage is attached and tucked away in a charming courtyard-style entry, which keeps the exterior clean and elegant.
Whether you’re storing a vintage ride or just your everyday SUV, the garage space in this plan offers security and practicality.
Add in the best home security system, and you’ve got peace of mind 24/7.
It’s also great for storage—holiday decorations, home improvement tools, you name it.
Vertical Living
This home’s vertical layout makes smart use of every inch.
With a ridge height of 37 feet and the potential for a third floor, the elevation gives the home a stately presence from the outside and functional separation on the inside.
Multi-story living is ideal for families who want communal spaces and personal retreats.
And thanks to the home’s flexible design, there’s no wasted space—just opportunity.
Whether you plan to purchase now or later, a layout like this one makes your investment feel future-proof.
It’s the kind of home that adapts with you, offering both practicality and potential.
This 3,335-square-foot beauty isn’t just a blueprint—it’s a dream brought to life.

With its classical design, practical layout, and a little something special on every level, this plan proves that living in style doesn’t mean sacrificing comfort.
It’s the perfect fit for buyers looking to make a solid investment, homeowners ready to upgrade, or anyone browsing real estate listings with a dream and a calculator.
Whether you’re focused on mortgage rates, securing the right home insurance, or mapping out future upgrades with a home equity loan, this floor plan gives you the bones, the beauty, and the brains.
It’s not just about building a house—it’s about creating a home you’ll love for years to come.
There’s more to home building than blueprints and finishes. Take time to compare mortgage rates, understand your credit score, and consult a seasoned real estate agent.
Secure your new home with home insurance, a quality home warranty, and explore refinancing down the road.
Tech-forward features like solar panels, smart home systems, and energy-efficient appliances not only enhance comfort—they raise your property value.
And with modern interior design software, planning your space is easier than ever.










