4-Bedroom Two-Story Rugged Craftsman Home with Outdoor Entertaining Spaces (Floor Plan)

Specifications:
- 3,085 Sq Ft
- 3 – 4 Beds
- 3.5 Baths
- 2 Stories
- 3 Cars
Let’s face it—scrolling through house plans is a hobby now.
Like binge-watching your favorite shows, but with more dreams of soaking tubs and less guilt.
And if you’ve landed on this rugged 3,085 sq. ft. Craftsman beauty, congratulations—you’ve officially found “the one.”
Or at least, the house you’ll now compare all others to.


This is a home that says, “I’m here to host Thanksgiving and your best backyard barbecue ever.”
It’s smart, it’s spacious, and it’s designed to grow with you.
Ready to fall in love one room at a time?
Where First Impressions Are Everything
The moment you step onto the generous 121-square-foot front porch, you’ll feel it.
This isn’t just a house—it’s a home with presence.
And by the way, it’s big.

At 89 feet wide and nearly 59 feet deep, you’ll want to make sure your mortgage rates are lined up before falling too deep in love.
But don’t worry—if you’re still working on that home loan pre-approval, there’s time.
Just be sure your credit score is in good shape.
Because a house like this?
It’s worth the effort.
Meet the Heart of the Home
Inside, the foyer opens up to the stunning Great Room, with an 18-foot coffered ceiling that makes you stop and say, “Whoa.”

Whether you’re entertaining a crowd or enjoying a quiet evening with your favorite book (or let’s be honest, a true crime podcast), this room feels grand without trying too hard.
It flows effortlessly into the open kitchen and dining area—perfect for modern living.
The kitchen’s generous 14’6″ x 13’6″ footprint includes a large island ideal for homework sessions, charcuterie spreads, and deep life talks over midnight snacks.
The adjacent dining room (14’6″ x 14′) is equally dreamy, with just the right amount of space to host dinner parties without shouting down the table.
Thinking long-term?
Investing in this home could improve your property value and open the door to future refinance mortgage options.

A stylish kitchen doesn’t just feed your family—it feeds your financial future.
Wine Cellar and Outdoor Bar? Yes, Please.
Let’s talk luxury: this home has a wine cellar.
Not a dusty cabinet in the corner, but a proper, dedicated space for your bottles.
You deserve that.
Right off the dining room, it’s perfect for both collectors and the “I just like a good cab” crowd.
And the outdoor entertaining area?

A 592-square-foot covered lanai and trellis bar setup that screams, “We host the best parties.”
Just imagine the summer nights out there—twinkle lights, great music, and friends who don’t want to leave.
Better invest in the best home security system—you’ll need it just to clear out guests!
A Master Suite That Understands You
Tucked privately on the main level, the Master Suite (or “M. Suite” if you’re feeling fancy) is where true comfort lives.
At 16’-2” x 14’-2”, it’s a perfect size for your California king bed and still leaves room for a reading nook or meditation zone.
The attached bathroom is every bit the spa oasis you’ve been dreaming of.

Dual vanities, a huge shower, and a soaking tub that whispers, “Go ahead, light the candles.”
And the walk-in wardrobe?
Let’s just say it’ll make your friends jealous.
Owning a home like this?
That’s what we call a real investment.
And with smart home technology, you can turn on the tub, dim the lights, and cue the relaxing playlist—all from your phone.
Work Hard, Relax Harder
Need a home office?

You’ve got it.
The Study on the main floor is 12′ x 14′-4″, and it’s far enough from the action to keep your Zoom calls peaceful and distraction-free.
Bonus: this space easily transforms into an extra bedroom or guest suite if needed.
Just another reason to talk to your real estate agent—flexible layouts mean better resale potential.
Don’t forget to protect this haven with home insurance and, ideally, a solid home warranty.
Peace of mind is a beautiful thing, especially when you’ve got this much to love.
The Mudroom MVP
Ever come home in the rain with groceries, kids, and a dog on a leash?

That’s why we have mudrooms.
This one connects the massive three-car garage (849 sq. ft. of glorious parking and storage) to the heart of the home.
It’s equipped to catch all of life’s chaos before it reaches your white sofa.
Oh, and there’s a separate laundry room off the mudroom.
Which means no more hauling dirty clothes upstairs.
Laundry day just got a glow-up.
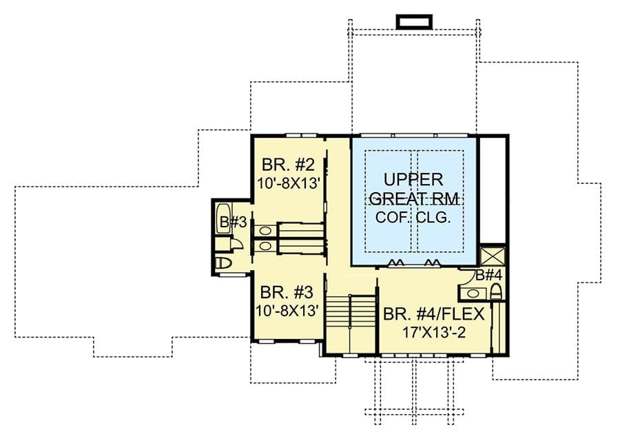
Upstairs
Head upstairs and you’ll find three additional bedrooms—including one big enough (17’ x 13’-2”) to be a flex room.

Home theater?
Guest suite?
Yoga studio?
The choice is yours.
Bedrooms #2 and #3 are both a cozy 10′-8″ x 13′, with a full bathroom nearby to keep everyone happy.
Planning to live here a long time?
These rooms make it easy to grow—whether it’s kids, hobbies, or visiting relatives.

And when the time comes, the added square footage improves your chances with home equity loans or future refinancing.
It’s all about building wealth while living well.
Unfinished Basement = Unlimited Potential
Underneath it all (literally), you’ve got a 2,229 sq. ft. unfinished basement.
That’s more than enough room for a gym, media room, play zone, wine lounge, or an underground bowling alley. (Too far? Maybe.)
With the help of a building cost estimator or a trusted home remodeling contractor, this space can become anything you want it to be.

It’s your secret weapon of square footage, just waiting to be claimed.
Smarter Living, Safer Living
As homes get smarter, this one is ready for the future.
With options to integrate smart home technology, you can control lighting, temperature, music, and even your oven from your smartphone.
Bonus?
It also boosts your home’s efficiency and safety, especially when combined with the best home security system on the market.
Add in high-quality insulation, energy-efficient windows, and you’ve got a house that works as hard as you do.

Thinking of buying now and making updates over time?
Home improvement loans can help you add value without draining your savings.
This Craftsman isn’t just a house.
It’s the setting for your next chapter—filled with dinner parties, movie nights, and quiet mornings in the kitchen.
With 3-4 bedrooms, 3.5 bathrooms, and a 3-car garage, it’s got the room you need and the charm you want.
But beyond the blueprints and numbers, this home is a smart buy.

Whether you’re here for the long haul or thinking of future resale, it checks every box.
From smart features to financial flexibility, you’re not just making a purchase—you’re making a future-proof investment.
So, whether you’re talking to a real estate agent, checking your credit score, or just daydreaming about soaking in that master tub, remember: the right home is more than square footage.
It’s a place where life happens—and this one is ready for all of it.
There’s more to home building than blueprints and finishes. Take time to compare mortgage rates, understand your credit score, and consult a seasoned real estate agent.
Secure your new home with home insurance, a quality home warranty, and explore refinancing down the road.
Tech-forward features like solar panels, smart home systems, and energy-efficient appliances not only enhance comfort—they raise your property value.
And with modern interior design software, planning your space is easier than ever.










