5-Bedroom 2-Story Country Farmhouse with Lots of Extras (Floor Plan)

Specifications:
- 3,005 Sq Ft
- 4 – 5 Beds
- 2.5 Baths
- 2 Stories
- 2 Cars
Let’s face it—we all dream of that picture-perfect country farmhouse with wraparound porches, cozy corners, and enough space to host Thanksgiving and still have a quiet spot to nap afterward.
Well, let me introduce you to this gem: a 3,005 sq ft country farmhouse plan that has all the extras you didn’t know you needed until now.
Whether you’re planning to buy soon, building from scratch, or just daydreaming on your lunch break, this floor plan is something special.




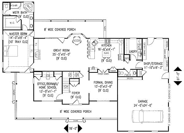
Welcoming Porches and Classic Country Curb Appeal
The first thing that struck me about this plan?
The porches.
Yes, wide covered porches—both in the front and the back.
That’s a rare luxury in today’s world of cookie-cutter homes.
These porches are perfect for everything from sipping lemonade on a warm day to working remotely (hello, fresh air and Wi-Fi).
They don’t just add charm—they extend your living space in a way that increases your home’s property value and just plain makes life more enjoyable.
With outdoor spaces this inviting, you’ll want to make sure you’ve got the best home security system on hand—so your peaceful porch vibes aren’t interrupted by uninvited guests of either the human or raccoon variety.
Spacious Living Area with Built-In Convenience
Step inside, and you’re welcomed by a generous living space that’s totally open-concept without losing its warmth.
The heart of the home—your living room, kitchen, and dining area—flows together seamlessly, ideal for large families or folks who love to entertain.
What’s even better?
Built-ins throughout the house.
We’re talking about smart shelving, cozy nooks, and cabinets that give your home personality and practicality.
No more scrambling to hide clutter every time your in-laws visit.
And let’s not forget about budgeting for those built-ins if you’re building.
A building cost estimator comes in super handy at this stage—you want that custom look, but you don’t want to refinance your entire life for it. (Though a home equity loan might just make those upgrades a bit easier to swallow.)
Flexible Room on the Main Floor
Now here’s one of my favorite features: a flexible room on the first floor.
Need a fifth bedroom?
Done.
A home office for your Zoom marathons?
Easy.
A homeschooling zone for the kids?
Perfect.
This room adjusts to your needs, making this floor plan ideal for growing families or shifting lifestyles.
If you’re planning to buy this plan and build in stages, this room can evolve as your family (and your credit score) grows.
It’s a smart investment in both your current comfort and your future flexibility.
Main-Level Master Suite with Spa-Like Bath
Let’s talk about the master suite.
It’s private, located on the main floor, and features a tray ceiling that adds a subtle touch of elegance.
But the real showstopper?
The luxurious master bath.
We’re talking a garden spa tub that basically turns bath time into a mini vacation.
Add in dual vanities, a separate shower, and plenty of space to move around, and you’ve got a setup that feels more like a boutique hotel than a regular ol’ bedroom suite.
When you’re house hunting or building, it’s easy to get lost in the paperwork—mortgage rates, home loan pre-approval, home insurance—but this master suite?

It’s a daily reminder of why it’s all worth it.
Open-Concept Kitchen and Dining with Room to Spare
Right next to the main living area is the kitchen and dining space, which in true farmhouse fashion, is spacious and practical.
There’s plenty of counter space, modern appliances, and a layout that makes it easy to move between prepping, cooking, and serving.
Whether you’re planning to cook family meals, host friends, or just snack your way through the day, this kitchen delivers.
And with today’s design tools, you can plan it out in detail using interior design software before a single cabinet is installed.
It’s the kind of upgrade that turns this space into the heart of the home—and it’s also something that positively impacts property value.
Upper Floor Bedrooms and Rec Room Fun
Upstairs, you’ll find three additional bedrooms, each with ample closet space and natural light.
Whether you’ve got kids, guests, or a creative hobby that needs its own room, you’ll have options here.
And because they’re tucked away upstairs, they provide separation from the main-level action.
Then there’s the vaulted rec room, which might just be the most versatile space in the house.
Game night central?
Movie marathon headquarters?
Indoor jungle gym?
Yep, it can handle all of that.
It’s also a perfect spot for adding some fun smart home technology—a sound system, maybe some dimmable lighting, or even automated blackout shades for your in-house cinema experience.
If you’re working with a home remodeling contractor down the line, this is the kind of room you’ll want to think about customizing.
It’s also a smart place to invest in upgrades using home improvement loans if your budget needs a little stretch.
Bonus Room and Storage
Also located upstairs is a bonus room and dedicated storage area, and trust me, you’ll thank yourself for this space later.
Whether it becomes a playroom, hobby shop, guest suite, or a quiet spot for yoga and deep breaths, this room adds another layer of flexibility to the already adaptable design.
Need more room for a home gym or workspace as your family grows?
The bonus room has you covered.
This is the type of square footage that makes real estate agents perk up—it’s a purchase that keeps on giving, no matter where life takes you.
A Floor Plan Built for Long-Term Living
This farmhouse plan doesn’t just give you a place to live—it gives you a place to thrive.
Every square foot is designed with purpose, from the charming porches to the spacious bedrooms to the future-proof bonus areas.
It’s got the bones of a forever home and the flexibility of a starter one.
And if you’re already thinking about resale down the line (though I personally wouldn’t want to leave), rest assured—this floor plan makes for a solid investment.
It appeals to a wide range of buyers, making it easier to sell should you decide to relocate, upgrade, or refinance your mortgage into a bigger dream down the road.

So there you have it: a country farmhouse plan that blends beauty, function, and adaptability into one beautiful package.
It’s more than just a pretty face.
With built-ins, flexible rooms, a spa-worthy master suite, and enough porches to make you the envy of the neighborhood, it’s a plan that fits both the Pinterest dream and the practical checklist.
And as long as you’ve got your real estate agent on speed dial and your finances lined up (hello, home equity loan options and smart credit score management), you’re on your way to making this house your home.
There’s more to home building than blueprints and finishes. Take time to compare mortgage rates, understand your credit score, and consult a seasoned real estate agent.
Secure your new home with home insurance, a quality home warranty, and explore refinancing down the road.
Tech-forward features like solar panels, smart home systems, and energy-efficient appliances not only enhance comfort—they raise your property value.
And with modern interior design software, planning your space is easier than ever.










