6-Bedroom 2-Story European Farmhouse With Covered Patio and Side-Entry Garage (Floor Plan)

Specifications:
- 5,392 Sq. Ft.
- 6 Beds
- 4.5 Baths
- 2 Stories
- 3 Cars
You want something warm, bright, functional, and a little bit fabulous.
So, you’re dreaming of a home that combines country charm with the luxuries of modern living. You want space—but not just any space.
Guess what? I’ve found the unicorn of home designs.
This exclusive 2-story New American farmhouse isn’t just a pretty face—it’s a powerhouse of features, and I’m about to give you a tour you won’t forget. Buckle up!


The Curb Appeal
Right off the bat, this house makes a bold statement with its elegant blend of traditional farmhouse aesthetics and sleek modern lines.
Think gabled roofs, large windows, and a welcoming front porch with just the right amount of Southern hospitality.
You’ll be waving to neighbors from your 238-square-foot front porch like it’s your job.
But this isn’t just about looks. That gorgeous side-load garage isn’t just easy on the eyes—it’s perfect for corner lots and keeps your curb view clean and classy.
With space for three cars and almost 1,000 square feet, you can finally park the truck, the SUV, the vintage convertible you swear you’re restoring someday—and still have space for bikes, tools, and camping gear.
Step Inside
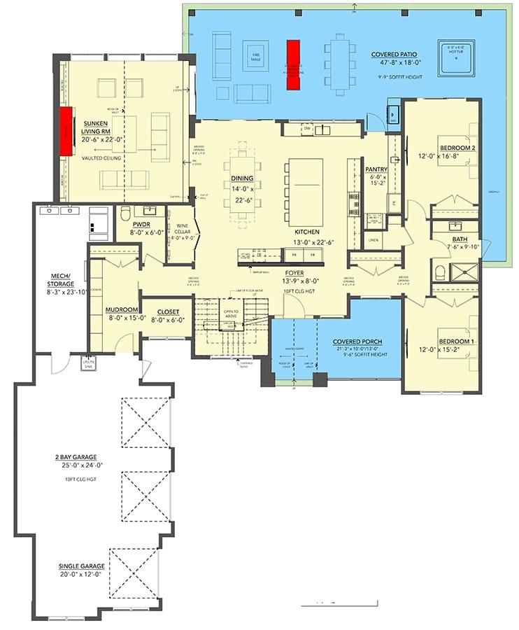
Let’s talk floor plan. The main level gives you a generous 2,696 square feet of heated living space, but thanks to the open-concept layout, it feels even bigger.
You enter into a bright, airy foyer that leads you straight into a sunken family room with a fireplace that crackles with cozy vibes.
This room is the beating heart of the home. Whether you’re hosting friends or enjoying a lazy Sunday in your PJs, this is where life happens.
Right in front of the family room is the kitchen. And not just any kitchen—this one’s a dream for home chefs, midnight snackers, and Pinterest foodies alike.
There’s a massive island with seating for five, which means you can whip up pancakes, supervise homework, and scroll real estate listings for fun all at once.
Best of all? The sink faces the fireplace and living room, so you’re not stuck staring at a wall while scrubbing pots. It’s the little things, right?
Double Pantry Power
Now, prepare to have your jaw dropped. This house doesn’t just have one pantry. Nope.
It has two—a large walk-in pantry for your daily food staples and an elegant butler’s pantry that’s perfect for staging meals, hiding clutter, or prepping for those wine-and-charcuterie nights we both know are essential to survival.
That means more storage, better organization, and fewer countertop appliances making your kitchen look like a gadget showroom.
Your home will feel cleaner, more spacious, and ready for a magazine shoot at any moment.
Walls of Glass and Outdoor Living Galore
Natural light lovers, this one’s for you. The rear of the home is practically made of walls of glass, so you’re soaking in sunlight and backyard views all day long.
And oh, the outdoor living options—get ready to swoon.
Out back, a massive 805-square-foot covered patio stretches across the rear of the home, complete with a fireplace and direct access from the dining room, sunken living room, hallway, and even Bed 2.
Yes, your guests—or lucky teenager—can enjoy private patio access.
There’s even a barbecue porch. Yep, we’re talking the ultimate grill master zone, shaded, spacious, and perfect for weekend cookouts, sunset cocktails, or s’mores with the kids.
Split Bedrooms
One of the most underrated floor plan wins? Split bedrooms. This layout gives everyone their space—without sacrificing connection.
Downstairs, Bedroom 2 has its own bathroom and patio access, making it ideal for guests, in-laws, or even a snarky teen who wants their “own wing.”

Meanwhile, the rest of the bedrooms are tucked upstairs. You get privacy, peace, and perfectly planned quiet zones. No more footsteps above your ceiling when you’re trying to binge-watch your favorite renovation show.
Upstairs, the Masterpiece
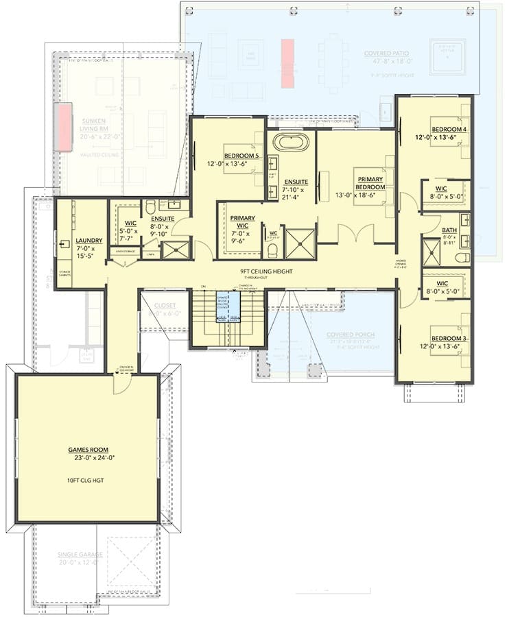
Let’s head upstairs, where the magic continues. The second floor mirrors the first in size—another 2,696 square feet of comfort, convenience, and charm.
Here, you’ll find four more bedrooms, all with walk-in closets.
No more “his and hers” fights over hanging space—everyone wins. Beds 3 and 4 share a Jack-and-Jill bath, while Bed 5 gets its own hall bath access.
This layout makes morning routines smoother and eliminates the dreaded bathroom traffic jam.
Now for the crown jewel—the master suite. It’s spacious, private, and seriously indulgent.
We’re talking tray ceiling, a walk-in closet that can double as a dressing room, and private access to the back porch. Coffee at sunrise in your robe, anyone?
Luxury Meets Function
Tucked at the end of the hallway is a laundry room that’s actually convenient . No lugging baskets up and down stairs—everything is exactly where it should be.
Oh, and remember that giant garage? Right above it is a game room big enough for pool tables, home theater vibes, craft chaos, or a mini arcade.
Whether you’re raising teens or just enjoy a good game night, this space is pure gold.
More Than a House
This home isn’t just packed with trendy features—it’s designed for real life.
From the energy-efficient layout to the thoughtful storage and flowing spaces, every square foot works hard so you can live easy.
And if you’re into home equity, real estate investing, or increasing property value , this kind of layout—with luxury touches like walk-in closets, outdoor kitchens, premium appliances, and smart HVAC zones—makes for an attractive, high-end real estate opportunity.
The Bonus Space
You know how life has this fun way of changing just when you think you’ve got everything figured out? That’s why optional bonus space in a house isn’t just a perk—it’s a necessity.
Above the garage sits a versatile game room, and it’s not just for Monopoly night.
Think: teen hangout zone, home gym, yoga studio, media room, crafting empire, guest suite—the possibilities are as wide as your imagination and Pinterest board.
Need a home office that’s far from the chaos of the kitchen? Boom—bonus space.
Dreaming of a home theater with reclining chairs and surround sound? It’s waiting for you. Planning a side hustle that needs its own space? This is your spot. In short, this house is built to evolve with your life.
Architectural Charm That Stands the Test of Time
Sure, trends come and go . But this house plan blends classic New American architectural charm with timeless structure and high-end features that keep it feeling fresh.
From the tray ceiling in the master suite to the cathedral-like volume of the sunken family room, every angle is a visual treat.
The walls of glass in the back of the house don’t just let the light in—they frame your outdoor space like it’s a work of art.
And let’s not forget the strategic use of natural building materials and textures—wood, stone, and metal—all combining for a look that’s both welcoming and wow-worthy.

Energy Efficiency and Smart Tech-Ready Living
Let’s talk high-ROI stuff for a second. You’re not just buying a pretty place to lay your head.
You’re investing in a home that could actually help you save money over time and boost resale value if you ever decide to move on .
This plan is energy-efficiency-ready. With open spaces designed to maximize airflow, expansive windows for natural lighting, and smart zoning potential for HVAC, this home is prepped for lower energy bills and higher living standards.
Want to integrate smart home technology? There’s ample wiring potential and space for everything from smart thermostats and lighting systems to full-blown home automation.
Whether you’re a tech enthusiast or just someone who wants to adjust the lights from the couch, you’re set.
Storage You’ll Brag About
Let’s be real—storage is sexy. And this home has it in spades.Walk-in closets in every bedroom. Two pantries.
A dedicated mechanical/storage room clocking in at 243 square feet. A 998-square-foot garage with space to hang tools, stash sports gear, and still park your cars.
We’re not saying you’ll be this organized all the time—but you could be. And that’s what matters.
Flexible Functionality That Feels Custom
Another major win for this plan? Functionality without rigidity. The layout flows intuitively but leaves room for personalization.
That front-facing study gives you a perfect work-from-home space, homeschool area, or hobby room—complete with a quiet view of the front porch.
The main-floor bedroom with private patio access and ensuite bath is an ideal in-law suite or guest retreat.
Even the upstairs configuration—placing the master between other bedrooms—is genius for families with young kids or multi-generational households. Close, but not too close, if you catch my drift.
And if you’re into multifunctional spaces, the upstairs laundry room at the end of the hall gives you the flexibility to add a linen folding station, mudroom-style lockers, or even a built-in utility sink. It’s functionality meets flair.
Luxury Living, Inside and Out
Let’s circle back to luxury for a moment.
Because sure, this home is practical and family-friendly—but it also delivers those fancy little touches that make you feel like every day is a staycation.
The outdoor fireplace on the covered patio? Perfect for cozy autumn nights with mulled cider in hand.
The barbecue porch? A dream for entertainers and grill-masters alike. And the dual access points to the patio from multiple rooms? That’s not just convenience—it’s design excellence.
And of course, the master suite—complete with private patio access, a spacious ensuite bath, and an enviable walk-in closet—gives you that resort-style feeling right at home.
To sum it up: this house plan is the real deal.

It’s not just a collection of popular features thrown together. It’s a thoughtfully crafted, beautifully balanced home that offers function, flow, flexibility, and fun.
From the first impression at the curb to the last s’more on the patio, every inch is designed to make you feel like you finally found “the one.”
So whether you’re buying to build, planning for your dream lot, or just indulging in a little home design fantasy (no shame), this modern farmhouse has what it takes to make everyday living feel like a luxury.
And hey, when you’re living in this kind of house, who needs a vacation?
There’s more to home building than blueprints and finishes. Take time to compare mortgage rates, understand your credit score, and consult a seasoned real estate agent.
Secure your new home with home insurance, a quality home warranty, and explore refinancing down the road.
Tech-forward features like solar panels, smart home systems, and energy-efficient appliances not only enhance comfort—they raise your property value.
And with modern interior design software, planning your space is easier than ever.










