6-Bedroom 2-Story Luxury Contemporary with Extra-Large Rear Porch (Floor Plan)

Specifications:
- 7,781 sq. ft.
- 6 Beds
- 6.5 Baths
- 2 Stories
- 3 Cars
Let’s just say if homes had dating profiles, this one would get a super-like.
I’ll make it painless—like a home improvement loan you actually enjoy signing for.
I feel like I’ve stumbled onto the architectural equivalent of a perfectly balanced latte: warm, bold, comforting, and just fancy enough to make me feel like I’ve made excellent life choices.
I’ll be honest—every time I see a house plan that mixes modern farmhouse charm with barndominium brawn.
And this 7,781-sq.-ft. beauty? Oh, it’s exactly that. Six bedrooms, soaring ceilings, a barbecue porch, a safe room, and even a massive workshop?
And yes… I’ll also be casually weaving in things like mortgage rates, smart home technology, and home equity loans. Don’t worry.


Open-Concept Living
The moment I step into this home (you know, in my imagination, because I’m emotionally attached already).
I’m greeted by a den that feels like the perfect “let me hide here before facing the world” space.
Then everything explodes open—in a good way—into a glorious two-story great room.

We’re talking cathedral-like height.
Walls of glass spilling light across the floors. Views stretching from the living room straight out to that wrap-around porch that practically screams “sip your morning coffee here while questioning why you didn’t Purchase this home sooner.”
From the great room, the entire layout wraps comfortably around daily life.

It’s the classic modern farmhouse open concept, but with that New American twist that makes the whole place feel fresh, airy, and prime for a really good Investment.
Of course, if you’re thinking about Buy options, a real estate agent would absolutely have a field day showing this off.
You’d look around imagining your furniture, calculating your Property value pride, and maybe double-checking your Credit score hoping it behaves long enough for Home loan pre-approval. Relatable, right?

A Kitchen You Could Host a Cooking Show In
Let’s wander into the kitchen—which is really the beating heart of this entire house plan.
The first thing you’ll notice is the giant island that doubles as your perfect “chop veggies while watching the family room fireplace” perch.
The sink faces out toward the living area, so whether you’re chatting, supervising, or dramatically retelling stories from work, you’re part of the action.

Speaking of refinancing, this home is the kind of place that makes you think, “Hey, maybe it’s time to Refinance mortgage rates and bump up that budget.”
After all, it’s not every day you find a kitchen that works for everyday meals and a full-scale Thanksgiving production without breaking a sweat.
Oh, and since we’re living in the age of Smart home technology, you just know there will be app-connected ovens, refrigerators that judge your grocery habits, and probably the Best home security system guarding your midnight snack runs.

A Master Suite
The primary suite—located conveniently on the first floor—feels like stepping into one of those luxury hotel rooms you promise yourself you’ll recreate at home and then promptly forget about. Only this time, you don’t have to recreate anything. It’s already perfect.
There’s a gorgeous tray ceiling, a spa-style bathroom, and a private door leading right onto the porch. Morning sunshine? Evening breezes? Midnight escape from the kids or guests? You’re covered.
And the best part? Direct access to the laundry room.

Yes. Laundry room access. From the suite. It’s like the designers truly understand the human soul.
If you’re thinking about long-term security, this is the kind of feature that increases overall convenience and Property value.
Whether you plan to Buy this plan for family living or as an Investment property, future buyers will fall in love just as hard.

And because every bedroom in this home comes with a walk-in closet and a private bath, you never have to argue about space again. Imagine that: a world where towel storage wars are no more.
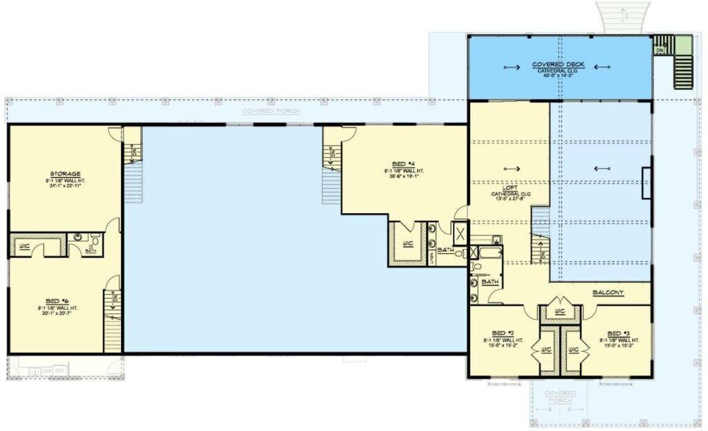
The Bonus Spaces
This home features an optional second-floor bonus space that you can finish whenever the mood strikes—or whenever your Building cost estimator stops giving you side-eye.
Maybe you’ll turn it into a game room, a studio, a home theater, or a place where you pretend to use interior design software for productive reasons.

But the second floor also includes something extra special: an open loft overlooking the great room below.
Dramatic entrances? Yes. Holiday décor placement? Absolutely. A Romeo-and-Juliet moment for the dog? Why not.
There’s even an attached apartment suite complete with its own bathroom, making it prime for multi-generational living.

Guests, in-laws, young adults… everyone gets a space that feels private and independent.
And for peace of mind, there’s a safe room tucked right into the layout—a perfect example of how practical features can live seamlessly inside luxurious design.
Outdoor Living
Let me just gush for a moment about the outdoor spaces.Over 2,000 square feet of wrap-around porch. Yes, you read that right. Wrap-around.

It hugs the house like a giant architectural embrace and sets the vibe for slow mornings, outdoor dinners, and casually judging your landscaping progress.
Then there’s the additional second-level covered deck, which feels like a VIP section for fresh air. It’s the perfect setup for gatherings, grilling, stargazing, or pretending you’re on vacation even when you’re not.
Considering that outdoor living spaces boost long-term Property value, this house basically hands you a return on Investment before you even finish unpacking.

And let’s not forget: the barbecue porch. It’s an actual, dedicated space for grilling. Think of all the burgers and memories waiting to happen.
Just don’t forget your home insurance—mostly because you know someone will eventually get over-confident with a new smoker.
A Garage and Workshop
Finally—oh yes—we have to talk about the 3,162-sq.-ft. garage with an integrated workshop.

Three cars. Room for tools. Room for hobbies. Room for “I swear I’ll finish this DIY project eventually.” A Home remodeling contractor would probably cry tears of joy in here.
And if you ever think about a Home equity loan for future improvements, this workshop alone justifies the excitement.
A Side-Load Garage
Let’s be honest: corner lots are fun until you realize your garage placement basically decides your whole neighborhood reputation.

Fortunately, this home comes with a side-load garage that not only looks fantastic but also makes the entire front façade feel grand and uninterrupted.
It’s the kind of design choice that instantly boosts curb appeal and, in turn, bumps up your property value without you having to lift a finger.
And this isn’t just any garage—no, no. At 3,162 square feet, this thing has the square footage of a small house.

Honestly, you could camp in here if you ever needed space from family, guests, or your own questionable DIY attempts.
Plus, the enormous workshop space attached gives you room for tools, projects, and possibly an experimental hobby no one needs to know about. (I won’t judge if you get really into restoring 1970s mopeds.)
Better yet, the garage connects seamlessly into the home, which your future home insurance will likely appreciate because attached garages make for fewer accidental “oops, I left the door open during a thunderstorm” situations.

A Two-Story Great Room
Now, let’s return to the heart-stopping moment when you walk into the two-story great room.
Trust me—you’ll want to pause here, pretend you’re on the cover of a luxury living magazine, and take in the soaring ceilings, walls of glass, and that perfect fireplace calling your name.
This space was crafted for both daily comfort and dramatic entrances—you know, like when your friends come over and you want them to gasp a little.

The open concept gives the home that bright, breezy feeling people often chase during a purchase or investment in real estate but rarely find executed this well.
And if you ever decide to refinance mortgage terms later, this great room is exactly the kind of feature lenders and appraisers smile at. It’s visually impressive, practical, and elevates the entire atmosphere of the home.
A Private Apartment
One of the most thoughtful features in this house plan is the attached apartment suite.

Complete with its own bathroom, private living spaces, and independent feeling, it’s the perfect retreat for aging parents, adult kids, or long-term guests who prefer a little autonomy.
Architecturally speaking, this feature enriches both usability and property value, especially in today’s market where multi-generational living is growing faster than mortgage calculators can compute.
It’s also a genius move from an investment standpoint; having a self-contained suite adds flexibility if you ever choose to rent it out or convert it into a home office, studio, or private hideaway when your main house feels a little too lively.

Plus, think of the convenience: whether someone is saving up, rebuilding their credit score, or planning to buy their first place, this space gives them privacy without sacrificing family connection.
Outdoor Living
Now let’s talk about what is arguably one of the biggest emotional selling points of this plan: over 2,000 square feet of wrap-around porch. That’s not a porch—that’s a lifestyle.
A porch like this begs for rocking chairs, morning coffee rituals, lazy afternoon naps, and evening conversations where you solve all the world’s problems.

And the second-story covered deck? That’s your bonus level.
Elevated views, a breeze that makes you feel like the main character in a movie, and just enough privacy to enjoy quiet time without hiding in a closet. It’s the ultimate retreat.
Outdoor living like this is exactly the kind of feature real estate agents highlight when discussing mortgage rates, future home equity loan potential, or long-term resale prospects.

Why? Because outdoor spaces age gracefully, require minimal remodeling, and deliver huge returns in terms of enjoyment and appraisal.
Planning, Budgeting, and Dreaming Ahead
A home of this scale does require planning, whether you’re working with a building cost estimator, chatting with your real estate agent, or crunching numbers on what kind of home improvement loans you might need for finishing the bonus spaces.
And let’s not forget the practical steps you’ll take like exploring home warranty options, comparing home insurance quotes, or checking how this home fits into your lending profile based on your credit score.

Even the path to home loan pre-approval becomes exciting when you’re eyeing a place that feels like a forever home.
This plan isn’t just a set of blueprints—it’s a long-term investment in comfort, lifestyle, and future growth.
At nearly 7,800 square feet of beautifully considered design, open spaces, private retreats, luxury finishes, and outdoor living galore, this modern farmhouse–barndominium hybrid is truly a masterpiece.
It blends mountain charm with New American flair, serving up a home that feels both grounded and elevated.
Whether you’re drawn in by the wrap-around porch, the soaring two-story great room, the apartment suite, the enormous garage workshop, or simply the prospect of living somewhere that makes every day feel like a mini escape—this plan has something for everyone.
There’s more to home building than blueprints and finishes. Take time to compare mortgage rates, understand your credit score, and consult a seasoned real estate agent.
Secure your new home with home insurance, a quality home warranty, and explore refinancing down the road.
Tech-forward features like solar panels, smart home systems, and energy-efficient appliances not only enhance comfort—they raise your property value.
And with modern interior design software, planning your space is easier than ever.










