6-Bedroom 2-Story Transitional Farmhouse With Vaulted Ceilings and Media Room (Floor Plan)

- 4,162 sq. ft.
- 6 Beds
- 5 Baths
- 2 Stories
- 3 Cars
Let’s be real—if you’re anything like me, scrolling through house plans has become your guilty pleasure. No judgment here; I do it too.
And when I stumbled across this jaw-dropping European-style modern farmhouse, I knew I had to share. It’s not just pretty—it’s smart, functional, and packed with personality.
We’re talking arches that make you feel like royalty, walk-in closets for every bedroom (yes, even the bonus room!), and a kitchen that might actually make you want to cook.
So let’s dive into this dream home that’s more than just good curb appeal—it’s an investment in your future.


First Impressions That Impress—Hard
The minute you pull up to this 2-story beauty, you’re greeted by arched windows and transoms across the front facade. It’s elegant, a little dramatic (in the best way), and undeniably European.
The side-load garage is a subtle nod to practicality—especially if you’re eyeing a corner lot. Oh, and did I mention it fits three cars? So go ahead, buy that weekend convertible or park your investment in a hobby vehicle.
Stepping inside, you’re hit with a sense of openness, thanks to the soaring ceilings and walls of glass that pull in every ounce of natural light. This isn’t just a house; it’s a sunlit sanctuary.
With mortgage rates always doing their little dance, finding a house plan that checks both the style and functionality boxes can feel like catching lightning in a bottle—but this one does it with ease.
The Heart of the Home: Kitchen, But Make It Sexy
Now let’s talk kitchen. This isn’t your average cookie-cutter layout with outdated cabinetry and mystery-stained linoleum floors. Nope. This kitchen is a whole vibe.
The sink is positioned in the island so you can wash dishes while admiring the fireplace flickering in the family room. Yes, that’s right—you get a fireplace and a view, because life’s too short for boring chores.
And let’s not overlook the pantry situation. Not only do you get a walk-in food pantry that’s basically a Costco shopper’s dream, but you also score a sleek butler’s pantry.
Hosting dinner parties, holidays, or just hoarding snacks? You’re covered. I don’t know about you, but I consider that kind of storage space a serious boost to property value.
Bonus: if you’ve got a knack for kitchen aesthetics, this floor plan offers plenty of canvas for those playing around with interior design software.
Imagine mixing rustic beams with smart home technology—because there’s nothing like adjusting your mood lighting and playlist with a tap while whipping up gourmet mac and cheese.
Living Large—Inside and Out
Open layouts are having a moment, and this plan makes the most of it. The kitchen flows effortlessly into the grand room and the dining nook, framed by—you guessed it—more graceful arches.
It’s the kind of space that begs for laughter, game nights, and the occasional happy dance when your refinance mortgage finally gets approved.
From the dining area, you can easily spill out onto the covered back porch, complete with a designated barbecue area.
Yep, this home practically insists you invest in the best home security system—because your grill game is about to make the neighbors jealous.
Plus, with the recent rise in home improvement loans, turning your backyard into an entertainment oasis is more attainable than ever.
Let’s not forget the study tucked away just enough to give you privacy, but still close to the action.
Whether you’re meeting with your real estate agent to talk home equity loan options or just catching up on emails, it’s a perfect blend of focus and flexibility.
Master Suite: AKA The Royal Quarters
Now for my favorite part—the master suite. And let me just say, calling it a “suite” feels like an understatement.
This is more of a retreat.Picture a spacious bedroom with a tray ceiling that screams elegance, and enough gbroom for a sitting area where you can sip your morning coffee like you live in a resort.
There’s even a morning kitchen—because walking all the way to the actual kitchen before caffeine? Outrageous.
The master bathroom? Equally indulgent. And with a large walk-in closet just waiting to be color-coded (or not, no pressure), you’re fully equipped for wardrobe expansion after every purchase you swore would be your “last one.”
And did I mention there’s direct access to the back porch? Early morning yoga, late-night stargazing, or simply spying on your plants—it’s your call.
Let’s Go Upstairs (Where It Gets Even Better)
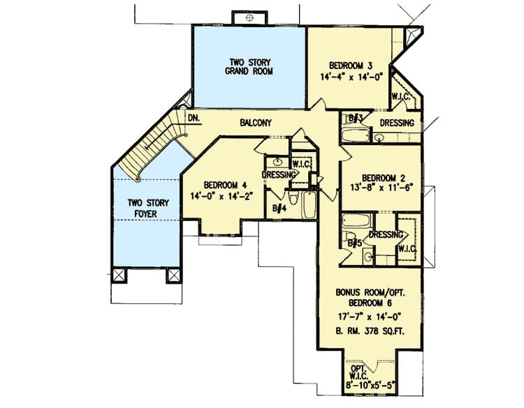
So you think the first floor is impressive? Hold onto your socks. Head upstairs and you’ll find three more generously sized bedrooms—each with their own walk-in closets, because this house does not play favorites.

Whether you’re designing bedrooms for teens, guests, or a combination of both, there’s room to breathe and room to personalize.
And for those of you with a growing family, frequent visitors, or a sudden urge to buy more furniture (guilty!), there’s a 378 sq. ft. bonus room.
You can finish it when you’re ready—no pressure—but just know it can become a fifth or even sixth bedroom, a home office, a gym, or a media room for movie nights.
Just imagine the options! Add a comfy couch, a bowl of popcorn, and a home remodeling contractor who understands your vision, and boom, instant retreat.
What I really love is how the upstairs gives you so much flexibility. Whether you’re building for today or planning for tomorrow, the layout allows for seamless adjustments.
And with the help of a building cost estimator, you can get a clear picture of how this dreamy expansion fits into your budget.
Smart and Secure—Because Peace of Mind Matters
You’ve already heard about the barbecue porch, the walk-in closets, and that dreamy master suite—but let’s talk security and tech. This house practically begs for the best home security system you can get your hands on.
With multiple access points, generous windows, and doors that open onto porches and patios, installing a smart system ensures that your sanctuary stays, well, yours.
Speaking of smart, smart home technology fits seamlessly into the layout. Program your thermostat to match your daily schedule, control lighting with your voice, or get a doorbell cam that lets you screen guests while lounging upstairs in the bonus room.
Whether you’re into full automation or just want to impress visitors with a motion-activated welcome light, this floor plan can handle it.
All of these features don’t just make life easier—they increase your property value, too.
And when it’s time to refinance your mortgage down the road, those upgrades could play a part in getting better terms or even qualifying for a home improvement loan for that next big backyard project.
Room for More
Let’s be honest: life comes with stuff. From holiday decorations to hobbies, from kids’ toys to your partner’s collection of “totally necessary” power tools—storage space matters. This home’s layout is a dream come true in that department.
You’ve already got a walk-in pantry, a butler’s pantry, and spacious closets galore.
But beyond that, the garage isn’t just a place to park your car; with 781 sq. ft. of space, it’s begging for a little workbench corner, extra fridge, or even a few fitness machines.
Combine that with the optional bonus space upstairs and you’ve got room to grow, experiment, and evolve as your needs change.
And let’s not overlook the beauty of smart planning. When you’re ready to personalize the interiors, a good interior design software can help you plan layouts and furniture placement without even lifting a chair.
From creating a cozy reading nook in the grand room to designing the perfect study for remote work, the space is ready to support your vision.
Ready for Anything—Even a Home Business or In-Laws
This plan doesn’t just shine for big families. It also works wonders if you need space for aging parents, boomerang kids, or even launching a home business.
That optional bonus room upstairs can easily double as a private suite. Add a bathroom, throw in a mini-fridge, and suddenly you’ve got a retreat for guests or a future teenager’s dream setup.
Planning on becoming your own boss or starting a remote side hustle? The study on the first floor is separate enough for Zoom calls and client meetings, and spacious enough to accommodate dual monitors, ring lights, and maybe a little espresso bar if you’re feeling fancy.
And if your credit score is in the healthy range, it might be the perfect time to secure a home loan pre-approval and snag this property before someone else does.
Outdoor Living = Daily Luxury
We’ve already touched on the barbecue porch (because who doesn’t want one?), but let’s go deeper. The outdoor living space in this house isn’t just some sad little slab of concrete.
It’s a full extension of the indoor living area. Add comfy furniture, string lights, maybe a water feature, and suddenly you’ve got your very own resort.
Thinking long term? Using a home equity loan or home improvement loan later could help you turn that space into a screened-in porch, a four-season sunroom, or even an outdoor kitchen.
And if you’ve already got that home loan pre-approval, you may even be able to roll that dream right into your mortgage now.
With today’s mortgage rates—which, let’s face it, feel like playing a never-ending guessing game—it’s nice to know you’re buying a home that gives you breathing room to adapt.
Whether it’s upgrading, customizing, or refinancing in the future, this plan sets you up for success.

Look, there’s no shortage of gorgeous homes out there, but this one? It’s got that rare combination of timeless beauty and forward-thinking design.
It’s perfect for relaxing, perfect for entertaining, and—maybe most importantly—perfect for adapting to your life as it changes.
Whether you’re on the hunt to buy, seriously considering a purchase, or deep in research mode with your real estate agent, this plan deserves a spot on your shortlist.
And don’t let things like home warranty, home insurance, or refinance mortgage paperwork scare you off. The right pros can make the process smooth, and the long-term perks of owning a home like this? Absolutely worth it.
So, ready to turn the dream into reality? Your future self—chilling by the fire pit with a drink in hand and zero regrets—says go for it.
There’s more to home building than blueprints and finishes. Take time to compare mortgage rates, understand your credit score, and consult a seasoned real estate agent.
Secure your new home with home insurance, a quality home warranty, and explore refinancing down the road.
Tech-forward features like solar panels, smart home systems, and energy-efficient appliances not only enhance comfort—they raise your property value.
And with modern interior design software, planning your space is easier than ever.










