Dual-Story 4-Bedroom New American Style Farmhouse with Industrial Metal-Clad Turret (Floor Plan)

Specifications:
- 2,425 Sq Ft
- 3 – 4 Beds
- 2.5 – 3.5 Baths
- 2 Stories
- 2 – 3 Cars
Ever strolled past a house and found yourself thinking, “Wow, I could live there forever”?
Prepare to be captivated, because the house I’m about to show you is something special—a true gem in the realm of modern homes.
Introducing the New American Farmhouse Plan, a seamless blend of industrial chic and suburban comfort that transforms everyday living into an art form.
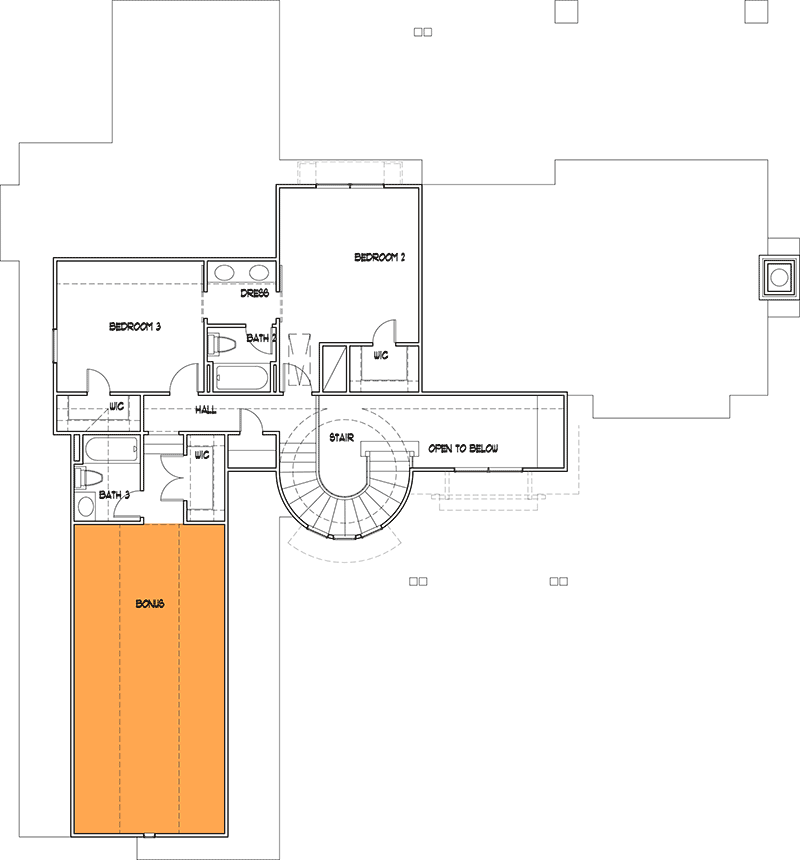
At the heart of this architectural marvel is its industrial metal-clad turret.
Forget the traditional fairy-tale turrets; this one is a contemporary spectacle enclosing a curved staircase.
Imagine starting each day by descending this staircase, feeling like a hero in your own modern saga—though the most daunting challenge you’ll face is likely choosing between espresso or drip coffee.






This home strikes the perfect balance between spacious and cozy.
With options ranging from three to four bedrooms and two and a half to three and a half bathrooms over two levels, it’s designed to be just right.
It’s large enough to host a vibrant gathering, yet intimate enough to feel like home.
Step through the front door and you’re welcomed by an expansive open-plan layout that seems to say, “Why not throw a party?” The lanai, complete with a BBQ station, is the stage for countless memorable evenings, whether you’re mastering the grill or enjoying a cool drink in the breeze.

The kitchen is where this home truly shines.
It’s designed for both the ambitious cook and the takeout connoisseur, featuring a sub-zero fridge, a sprawling island, and a stylish farmhouse sink.
Even leftovers would feel luxurious here.
And the walk-in pantry?

Concealed behind a rustic barn door, because everyone loves a touch of country charm.
The master suite on the main floor is a retreat within a retreat, boasting a five-fixture bathroom and a pass-through closet that leads directly to the laundry room—talk about convenience!
This suite is less of a bedroom and more of a private spa experience.
Venture up the charismatic turret staircase to discover additional bedrooms linked by a Jack-and-Jill bathroom.

Over the garage lies a versatile bonus room—today a cinema, tomorrow a guest suite.
The adaptability of this space is akin to having a home with its own shape-shifting superpower.
Don’t overlook the garage.
Tucked beneath elegant gables, this isn’t merely a parking spot but a sanctuary for your vehicles, a place where they’re not just stored but cherished.

Every inch of this home is a testament to thoughtfully curated style and comfort, from the sleek metal finishes to the inviting fireplace that serves as the living area’s focal point.
This isn’t just a place to stay; it’s a way to live.
So, that’s the New American Farmhouse Plan—not just a series of rooms, but a celebration of modern living infused with an industrial flair.

It’s designed for those who see their home as both a sanctuary and a source of daily adventure.
Who could resist a house with its own turret?
It’s not just functional; it’s irresistibly unique.

As we conclude this tour, remember that a home is much more than a shelter.
It’s a canvas for memories, a space for growth, and perhaps, a spot for that striking metal-clad turret.
Life is too exciting for mundane spaces.
So, are you ready to embrace the home of your dreams?
Welcome home.
There’s more to home building than blueprints and finishes. Take time to compare mortgage rates, understand your credit score, and consult a seasoned real estate agent.
Secure your new home with home insurance, a quality home warranty, and explore refinancing down the road.
Tech-forward features like solar panels, smart home systems, and energy-efficient appliances not only enhance comfort—they raise your property value.
And with modern interior design software, planning your space is easier than ever.










